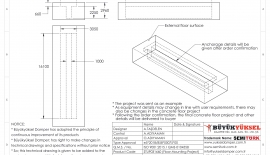
Hidrolik Kamyon - Tır Boşaltma Platformu / Lifti - STUP031660

Hidrolik Kamyon - Tır Boşaltma Platformu / Lifti - STUP031660

Ürün Adı: Hidrolik Kamyon - Tır Boşaltma Platformu / Lifti
Model: STUP031660
Marka: SEMITURK

Kullanım Amacı:

Un,yem,şeker fabrikalarında damperli olmayan araçların kolaylıkla yükünü boşaltabilmesi için hazırlanmış bir üründür.

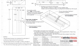
Gövde / Şasi :

Yüksek mukavemetli çelikten özel tozaltı kaynak makineleri kullanılarak imal edilir. Şasi, çerçeve ve omurgalar zor arazi şartları ve ağır yüklemeye uygun olup estetik görünümlü ve mukavemetli olarak tasarlanmıştır.

Kullanılan malzemeler:

* Damper şasi 300 mm “NPU” takviye sacı ile kapatılıp sık aralıklarla “100 mm NPI” ile güçlendirilir.

* Taban sacı 8 mm olup etek sacı 6 mm dir.

* Alt şasi 200x200 profilden olup arka eksen mili çapı100 mm olup cıvata bağlantılıdır.

* Platform üzerinde denge kolu mevcut olup eksen mili arası çapraz sistem ile güçlendirilir.

* Platform ön kısmına treyler bağlama halkaları mevcuttur.

* Damper kaldırma açısı 38 derecede tahliye sistemi ile sınırlandırılacaktır.

* Elektirik kesintisinde manuel indirme platform üzerinde mevcuttur.

* Treyler ve kamyon için 2 sıra teker tutucusu olacaktır. ( hidrolik hareketli )

Boyama :

* İki kat pas korumalı astar ve iki kat üst akrilik boya.